Tala Gestapeld - 1 slaapkamer - 54m2
- Conceptaanbieder
- PMC
- Woningtype
- GO range info
- Beukmaat range info
- Tala open_in_new
- PMC 19 Zorggeschikt
- 1 of meer kamerconcept
- Zorggeschikt
- 55 - 200 m2
- 6 - 8 m
Drenthe, Flevoland, Friesland, Gelderland, Groningen, Limburg, Noord-Brabant, Noord-Holland, Overijssel, Utrecht, Zeeland, Zuid-Holland
Biobased bouwen en toekomstbestendig wonen. Dat gaat bij Tala hand in hand. Op alle mogelijke manieren. Met flexibele plattegronden voor de woonwensen van de toekomst, waar mensen met een zorgbehoefte langer zelfstandig blijven wonen. De maximale ontwerpvrijheid maakt een locatie specifiek plan mogelijk naar lokale behoeften. Grondgebonden of gestapeld, met vele dakvormen, gevelbekleding, beukmaten, configuraties etc.
Met biobased constructie (CLT), isolatie en gevel, voor een bijzonder kleine voetafdruk nu en een leefbaar klimaat in de toekomst. Plus klimaatadaptieve en natuurinclusieve maatregelen, inspelend op een extremer klimaat en natuurbehoud. Vanuit een circulair droogbouwsysteem, voor bijna volledig hergebruik in de verre toekomst. Snel en betaalbaar in onze fabriek volledig afgebouwd en optioneel stikstofvrij geplaatst, met minimale impact op locatie.
Voor een toekomst waarin iedereen prettig kan wonen.
Zorggeschikte woningen
De komende twintig jaar verandert Nederland ingrijpend. Het aantal 65-plussers zal verdubbelen in 2040. Senioren van nu en straks zijn zelfstandiger, blijven langer volwaardige deelnemers aan de samenleving. Tegelijkertijd hebben zij behoefte aan woningen die comfort, veiligheid en zorgondersteuning mogelijk maken. Daar zijn te weinig bestaande woningen op ingericht, wat de doorstroom belemmert.
Tala’s aanpasbare modulaire bouwsysteem is bij uitstek geschikt voor deze woonwens. Onze zorggeschikte woningen (PMC19) zijn uitvoerbaar in 2, 3 of 4 kamer woningen, rolstoel toe- en doorgankelijk. Woonkamer, keuken, badkamer, toilet en minimaal één slaapkamer bevinden zich gelijkvloers en zijn zonder trap bereikbaar. Bovendien zorgt de dampopen natuurlijke bouwmethode voor een extra gezond en prettig woonklimaat voor deze doelgroep.
De woningen kunnen zowel als grondgebonden eenlaagse woning of als onderdeel van een gestapeld woongebouw worden gerealiseerd.
Geclusterde woonvormen met ruimte voor ontmoeting
Senioren zijn vaker aan huis gebonden en hechten waarde aan ongedwongen contact. Daarom plaatsen wij meerdere zelfstandige woningen ook als geclusterde woonvormen, met desgewenst meerdere typologieën binnen één woongebouw aangevuld met bijvoorbeeld een gemeenschappelijke ruimte. De woongebouwen zijn zo vormgegeven dat er sprake zal zijn van toevallige ontmoeting tussen bewoners onderling. Uiteraard mét behoud van privacy. Akoestische ontkoppeling en geluidsisolatie zijn standaard geïntegreerd in onze modules.
Die ontmoetingsruimte is in veel gevallen geen bijzaak, maar een essentieel onderdeel van het ontwerp. Denk aan een huiskamer, tuinkamer of atelier – een plek waar bewoners elkaar vanzelf tegenkomen. Het gebouw draagt actief bij aan ontmoeting, bijvoorbeeld door zichtlijnen, gedeelde buitenruimtes en slimme routing. Deze functie kan desgewenst zelfs een buurtfunctie vertegenwoordigen.
Zo wonen mensen op natuurlijke wijze langer zelfstandig thuis, ook wanneer hun zorgvraag toeneemt.
add Lees volledige omschrijving- Doelgroepen Arbeidsmigranten, Grote gezinnen, Jongeren / starters, Kwetsbare doelgroep, Ouderen, Statushouders, Studenten
- Werkelijke beukmaat 8.9
- Werkelijke gebruikersopp. (GO) 55
- Werkelijke bruto vloeropp. (BVO) 61
- Aantal slaapkamers 1
- Aantal toiletten 1
- Aantal badkamers 1
- Mogelijkheden ontsluitingsonderdelen Atrium, Corridors, Entree, Galerijen, Liften, Portieken, Trappenhuis
- Warmtebron/ -opwekking Bodemwarmte (bodemwarmtepomp), Buitenlucht (lucht-water warmtepomp), Lucht-lucht warmtepomp, Stadsverwarming, Ventilatie (ventilatieluchtwarmtepomp)
- Warmte afgifte Lucht, Vloer
- Opwekking tapwater Doorstroom apparaat, Elektrische boiler, Stadsverwarming, Warmtepomp (al dan niet gecombineerd met verwarming)
- Ventilatie Type D (mechanische toevoer en afvoer)
-
BENG
BENG 1 standaard volgens 'De Woonstandaard'
BENG 2 optie aanvullende prestatie eis
BENG 3 optie aanvullende prestatie eis - MPG score 0,2 - 0,39
- Losmaakbaarheid 80 - 100 %
- Herbruikpotentie 80 - 100 %
- Omvang restmateriaal 0 - 19 %
- Energieverbruik (kWh/m²/jaar) 55
- GPR-score 8 of hoger
- Rc waarde vloer 4 - 5 m2K/W
- Rc waarde gevel 5 - 6 m2K/W
- Rc waarde dak > 7 m2K/W
- CO2 uitstoot 126/139 - 200 kg CO2-eq per M2
- CO2 opslag > 300 kg/M2 BVO
- Luchtdichtheid Klasse 3 - Uitstekend qv; 10 < 0,15 dm3/s.m2
- Gebruik biobased materialen Ja
- Houtbouw concept Ja
- Fabricagewijze 3D Prefab Modules
- Bouwsysteem Houtbouw CLT
- Kapconstructie A-symmetrische kap, Dwarskap, Lessenaarsdak, Platdak, Zadeldak
- Aantal lagen leverbaar 5
- Aanpasbaarheid van de woning in de tijd Hoog aanpasbaar door flexibele of modulaire opzet
- Omschrijving aanpasbaarheid Ja, de woning is in de tijd aanpasbaar. Zo kan de 2 kamerwoning eenvoudig meegroeien met de bewoner naar een 3 of 4 kamerwoning. Maar dit kan ook weer worden gedemonteerd., , Door de prefab woningmodules in de breedte van de woning te plaatsen is dat eenvoudig aanpasbaar. (zie ook ontwerptoelichting bij de bijlage plattegronden) De indeling van de woning is eenvoudig aanpasbaar. De getoonde plattegronden zijn een startpunt vanwaar uit samen met de opdrachtgever naar een optimale inpassing kan worden gezocht. 1, 2 en 3 kamerwoningen kunnen eenvoudig worden gecombineerd tot een woongebouw al dan niet met gemeenschappelijke ruimten. Ook de afwerking van het massieve hout, posities en draairichting van deuren, gevelindeling en afwerking is aanpasbaar naar gelang de wens van de klant.
- Ontwerpruimte binnen het woningconcept Grote ontwerpruimte binnen het systeem
- Niveau van voorbereiding op zorgtechnologie Conform basis prestatie-eisen pmc 19
- Voorbereiding domotica en zorgtechnologie Conform basis prestatie-eisen pmc 19
- Aantal wooneenheden binnen woongebouwen 50 tot en met 100 wooneenheden
- Voorbereidingstijd 1 - 3 maanden
- Bouwsnelheid 1 - 3 maanden
- Kwaliteit (onderhouds) garantie Hoofdaannemer
- Typegoedkeuring Nee
- Contractvorm D&B , Turnkey
- Modelovereenkomst NCB Ja
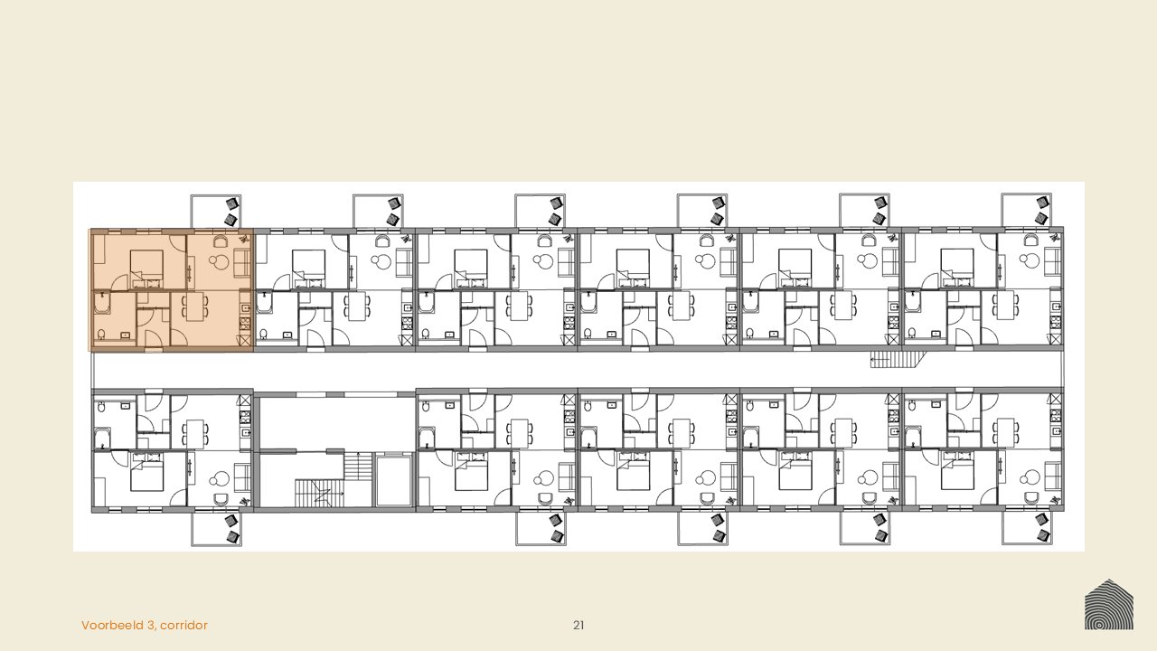
Mogelijkheden PMC19 in PMC20 woongebouw
Onze PMC 19 woningen zijn modulair van opzet. De woningen kunnen worden uitgevoerd als 1, 2 of 3 slaapkamerwoning en eindeloos met elkaar worden gecombineerd. Daarnaast kunnen 1 of meerdere woningen worden gekoppeld om algemene ontmoetingsruimten te faciliteren. Er is daarbij nagedacht over alternatieve aanwendbaarheid. Een algemene ruimte is met kleien ingrepen eenvoudig om te zetten naar een verhuurbaar appartement.
Bekijk websiteGevelindeling
De gevel indeling is aanpasbaar en veelal projectspecifiek. Gevelopeningen in de zijgevel dragen bij aan de uitstraling en leefbaarheid van gebouw en omgeving.
Gevelafwerking
Bij de keuze voor een gevelafwerking zijn meerdere aspecten van belang. We gaan graag met u in gesprek of komen met een voorstel. Biobased materialen hebben onze voorkeur, alternatieven zijn mogelijk ,
Rol van de plint
Geen actieve plint, Functionele plint (zorg of ontmoeting), Gemengde plint (maatschappelijk, zorg, ontmoeting/wonen)
Mobiliteit & parkeren
Maaiveld, Parkeergarage onder woongebouw, Parkeergarage separaat
Organisatie van verkeersruimtes
Verkeer volgt reguliere routing (standaard 1,50m), Verkeer heeft deels gescheiden routing, Alle (intensieve) logistiek expliciet meegenomen in ontwerp
Buitenruimte en het bevorderen van sociale interactie en welzijn
Beperkt aanwezig, Vanuit elke woning uitzicht op groen, 30% kroonbedekking (bomen) maakt deel uit van de buitenruimte, Max 300 meter afstand tot een ontmoetingsplek
De prijsindicatie op Conceptenboulevard.nl toont een indicatief overzicht van woningconcepten binnen dezelfde Product-Markt-Combinatie (PMC). De prijs kan worden weergegeven per woning, per m² BVO of per m² GO. Per aspect wordt een bandbreedte getoond tussen de minimale en maximale prijzen binnen dezelfde PMC. Dit maakt een eerlijke en transparante vergelijking mogelijk.
Let op: onderstaande benchmark is gebaseerd op een vergelijking met 13 concept(en) binnen PMC 19 Zorggeschikt met een peildatum minder dan een jaar oud.
-
Verkoopprijs Op basis van m2 BVO
€ 1.267 € 2.176 - € 2.660 € 2.660
-
Inbegrepen in verkoopprijs Aanvullende diensten binnen de basisprijs
- Toezicht / Toetsingsmomenten op de bouw
- Omgevingsplan (met ruimtelijke onderbouwing)
- Indienen omgevingsplan met activiteit bouwen
- Precario
- Aanvragen nutsaansluitingen
- CAR / verzekeringen
- Opstellen uitvoeringscontracten, juridische ondersteuning
- Vragen & dialoogronde
- Keuze en kosten kwaliteitsborger Wkb
- Beschikt over (woning)configurator
"Wij ontwerpen en bouwen huizen waar je van hout"
check Duurzaamheid
Tala bouwt met maximaal biobased en hergebruikt materiaal. Robuust CLT, netto CO2-opslag, lange levensduur, 99% herbruikbaar en stikstofvrij plaatsen.
check Keuzevrijheid
Met een Tala woning is bijna alles mogelijk. Met variaties in beukmaat, gevel, kap en (zorg)plattegrond maken we altijd een locatie specifiek plan
check Betaalbaarheid
Dankzij de standaard bouwwijze en innovatieve productie in eigen fabriek, bouwen wij volledig duurzaam voor de kosten van conventionele woningbouw.
check Energieprestatie
Betere isolatie, eigen energie-opwekking en doeltreffende installaties houden de woning behaaglijk met minimaal energieverbruik. EPV mogelijk.
check Ontzorgen
Bij Tala huist alle expertise onder één dak. Van ontwerp tot buurtcommunicatie tot oplevering, wij ontzorgen volledig met eigen enthousiaste mensen.

Geïnteresseerd? Neem contact op met de aanbieder, bewaar het concept als PDF of download de plattegrond.
- Bekijk website concept open_in_new
- Download als PDF file_download Download plattegrond file_download
- Contactgegevens aanbieder phone
- Deel concept ios_share
"Wij ontwerpen en bouwen huizen waar je van hout"
check Duurzaamheid
Tala bouwt met maximaal biobased en hergebruikt materiaal. Robuust CLT, netto CO2-opslag, lange levensduur, 99% herbruikbaar en stikstofvrij plaatsen.
check Keuzevrijheid
Met een Tala woning is bijna alles mogelijk. Met variaties in beukmaat, gevel, kap en (zorg)plattegrond maken we altijd een locatie specifiek plan
check Betaalbaarheid
Dankzij de standaard bouwwijze en innovatieve productie in eigen fabriek, bouwen wij volledig duurzaam voor de kosten van conventionele woningbouw.
Bedankt voor je interesse!
Wil je meer weten over dit concept en de mogelijkheden voor jouw bouwvraag? Stuur dan via onderstaand formulier direct een bericht naar de conceptaanbieder.